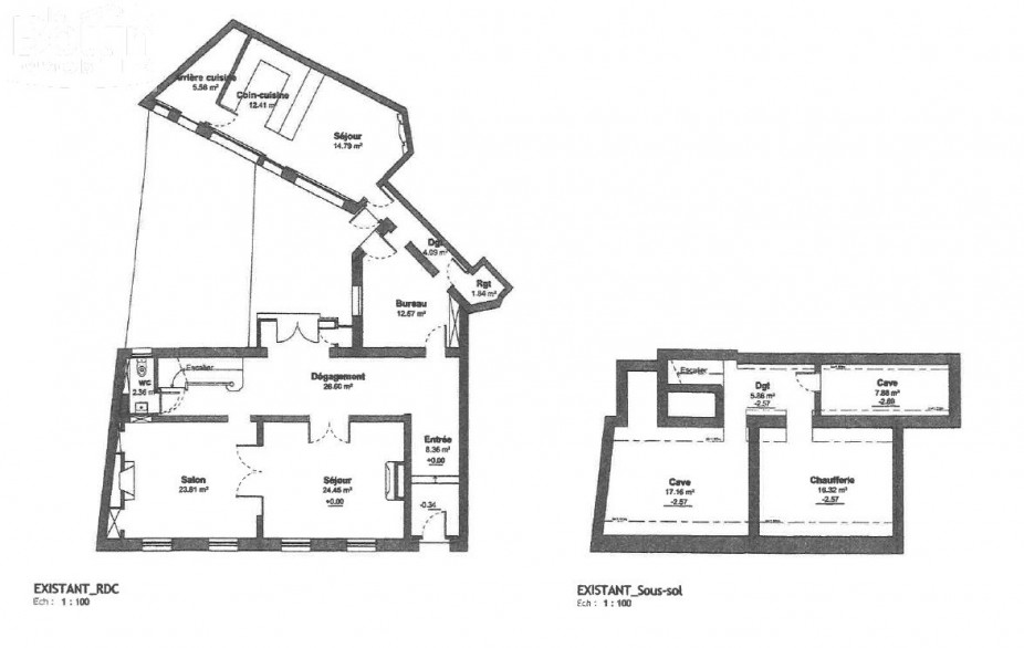
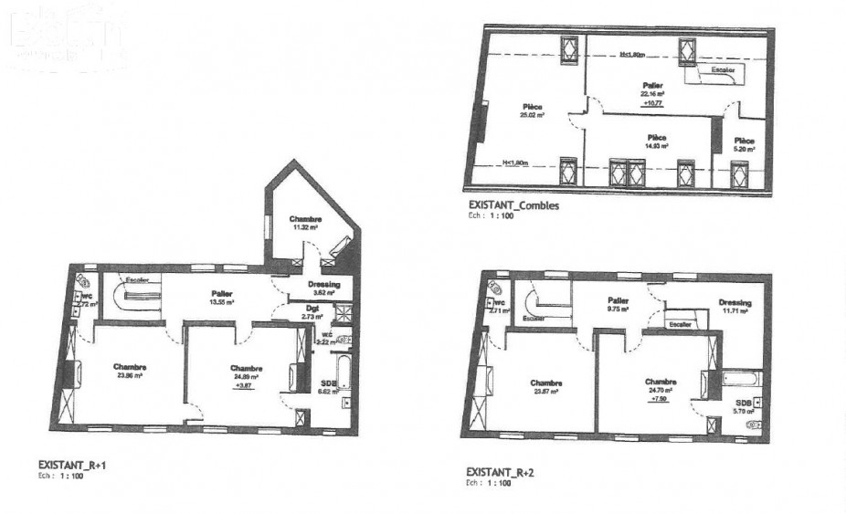
| NIVEAU | PIÈCE | SURFACE |
- 313 m²
- 9 pièce(s)
- 5 chambre(s)
- 60 m²
Quartier HENRIVILLE – AMIENS, Maison de caractère – 313 m² – RARE sur le secteur
Située dans le très recherché quartier Henriville, cette maison familiale de 313 m² habitables (hors grenier) allie cachet de l’ancien et volumes généreux, à deux pas du centre-ville, des commerces, écoles et transports.
Double séjour lumineux de près de 50 m²
Cuisine fonctionnelle de 27 m² avec arrière-cuisine
5 chambres, dont 2 suites avec WC et point d’eau privatifs
2 salles de bains
Grenier aménageable (60 m², velux en place)
Charmante cour intérieure, idéale pour les beaux jours
Caves saines et accessibles pour stockage ou atelier
Charme préservé : parquets massifs, moulures, cheminées en marbre, belle hauteur sous plafond
Nombreuses possibilités d’aménagement
Prix : 780000 Euros
Honoraires : 4 % TTC inclus charge acquéreur (750000 Euros hors honoraires)
Contactez Didier BOTTIN - 06 82 59 66 78
LE BOTTIN IMMOBILIER Agence Digitale 03 22 22 20 45 / contact@lebottin-immobilier.com
RSAC N° 440 532 695
Carte Professionnelle Immobilier n° 8001 2018 000 032 267
N° T.V.A Intra FR63440532695
Les informations relatives à l'état des risques et pollutions pour ce bien peuvent être consultées sur le site
Géorisques : www.georisques.gouv.fr.
* Honoraires : 4% TTC inclus charge acquéreur (750 000 € hors honoraires).
Diagnostics de performance énergétique

Montant estimé des dépenses annuelles d'énergie pour un usage standard : 4 400.00€
Prix moyen des énergies indexés au 01/01/2016 (abonnement compris)
À proximité de ce bien ...
La géolocalisation n'est pas précise sauf pour les biens en exclusivité








